KOWOBE Wohnungsangebote

Herzlich Willkommen!

Wir, der KOWOBE Fürstenberg/Havel, vermieten Wohnungen in Fürstenberg/Havel, Bredereiche, Steinförde, Himmelpfort, Blumenow, Tornow sowie Neuglobsow. Hier finden Sie einige unserer aktuell verfügbaren Angebote.

Sollten Sie Interesse haben, eine der aufgelisteten Wohnungen anzumieten oder auf Wohnungssuche mit uns zu gehen, dann nehmen Sie gern Kontakt mit uns auf - telefonisch, auf dem Postweg oder per E-Mail.
Dazu finden Sie unter "Mieterservice & Informationen" alle erforderlichen Bewerbungsunterlagen. Dabei ist der Wohnungsbewerbungsbogen natürlich das wichtigste Element. 

Barrierefreie, rollstuhlgerechte 3-Raum-Wohnung im Stadtzentrum

circa 87,00 m²
Erdgeschoss
Gesamtmiete: 761,00 € (Warmmiete) Euro
Zu vermieten ab: 01.11.2025

Objektstandort
Markt 4
16798 Fürstenberg/Havel

Das Wohnhaus im Markt 4, 16798 Fürstenberg, ist ein kleines Mehrfamilienhaus im Stadtzentrum mit einem kleinen, gemütlichen Innenhof.  
Innerhalb von 5 Minuten erreichen Sie zu Fuß diverse Supermärkte, Bäcker und Cafés, Apotheken, das Rathaus, die Sparkasse etc.
Innerhalb von 10 Minuten erreichen Sie zu Fuß den Bahnhof. 

Fürstenberg/Havel ist eine Wasserstadt umgeben von drei Seen. Hier finden Sie diverse Einkaufsläden, Modeboutiquen, Cafés, Badestellen, Bootsverleihe, Spielplätze und vieles mehr. Auf dem Weg in die Innenstadt erwartet Sie unser Stadtpark, wo im Sommer bspw. das städtische Wasserfest stattfindet, sowie das Schloss Fürstenberg aus dem 18. Jahrhundert. 
Kindergärten und die Grundschule erreichen Sie innerhalb von 5 Minuten mit dem Auto. Optional bietet Fürstenberg/Havel auch einen Kindergarten und eine Grundschule im Ortsteil Bredereiche. 

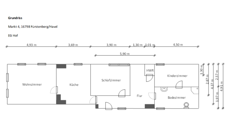
Die barrierefreie, rollstuhlgerechte 3-Raum-Wohnung liegt im Erdgeschoss des Wohnhauses.
Die Wohnung umfasst circa 87,00 m² Wohn- und Nutzfläche. Sie ist unterteilt in einen Flur, ein Badezimmer, eine Küche, ein Wohnzimmer, ein Schlafzimmer und ein Kinderzimmer.
Das Badezimmer ist ausgestattet mit Waschbecken, WC und Dusche. Man kann es vom Flur und vom Kinderzimmer aus betreten.
In der gesamten Wohnung sind die Türen verbreitert.
Die monatliche Warmmiete in Höhe von 761,00 € setzt sich aus einer Kaltmiete in Höhe von 543,75 €, einer Betriebskostenvorauszahlung in Höhe von 87,00 € sowie einer Heizkostenvorauszahlung in Höhe von 130,25 € zusammen.
Die Wohnung ist an die Zentralgasheizung angeschlossen. 
Aus der Kaltmiete in Höhe von 543,75 € ergibt sich eine Kaution, drei Monatskaltmieten, in Höhe von 1.631,25 €. Die Zahlung der Kaution in drei Raten ist möglich. 
Die Nutzung eines Kellerraums ist im Mietpreis enthalten. 

Sollten Sie Interesse an einer Besichtigung der o.g. Wohnung haben, sprechen Sie bitte telefonisch einen Besichtigungstermin mit einem unserer Mitarbeiter ab.
Die notwendigen Bewerbungsunterlagen finden Sie auf unserer Website unter "Mieterservice". Bitte beachten Sie, dass diese Unterlagen vor oder zum Besichtigungstermin mitzubringen sind. 


Kontakt & Anschrift

KOWOBE 
Kommunaler Wohnungswirtschaftsbetrieb
der Stadt Fürstenberg/H. 
Markt 5 
16798 Fürstenberg/Havel 

Telefon: 033093 349-0 
Telefax: 033093 349-49 
E-Mail: info@kowobe-fuerstenberg.de


Mietersprechzeiten

Dienstag:
09:00 - 12:00 Uhr

Donnerstag:
14:00 - 17:30 Uhr

Einen Termin außerhalb der Sprechzeiten bitte vorher telefonisch vereinbaren.

© Stadt Fürstenberg/Havel - Impressum | Datenschutz